Двухконтурные газовые котлы
Система Отопления Двухконтурного Газового Котла
Очень важным моментом в работе любого котельного оборудования является давление жидкости. Для контроля этого параметра системы отопления практически все котлы оборудуются манометром. В процессе наполнения систем водой необходимо следить за давлением и после того, как оно достигнет отметки 1, 5-2атм, наполнение системы нужно будет остановить. В принципе, показатель рабочего давления котла в зависимости от производителя и модели может меняться – поэтому точную цифру рабочего давления смотрите в инструкции к котлу. Удаление воздушных пробок в системе…
читать дальшеДвухконтурные Газовые Котлы Vaillant
Термопары бывают двух видов. Первая использует принцип расширяющейся жидкости, помещенной в замкнутое пространство корпуса. При нагреве термопары жидкость начинает расширяться и через капиллярную трубку воздействовать на шток терморегулятора. Другой принцип действия термопары газовых котлов основан на следующем явлении: если нагревать стык двух разных металлов, то на проводах, припаянных к этим металлам, возникает небольшое напряжение, до 50 мВ. В этом случае привод газового клапана оборудован электромагнитом, который отключается при остывании термопары…
читать дальшеЭлектрокотел Двухконтурный
Индивидуальное отопление в частном доме – это надежный источник тепла и уюта, обеспечить которые способны специальные приборы, которые называются котлами. Установка котла и всей системы требует особого подхода. Бывают одноконтурные котлы, которые обеспечивают только отопление дома, а есть двухконтурные, которые, кроме тепла, обеспечивают горячее водоснабжение. Широкий выбор газогенераторных котлов пиролизного типа представлен на сайте ecokotel. . Выбор типа котла очевиден, при наличии газовой магистрали рядом с домом. Если ее нет, нужен альтернативный…
читать дальшеНемецкие Газовые Котлы Отопления Двухконтурные Цены
Немецкие газовые котлы производятся известными всему миру компаниями. Они имеют высокое качество и отлично работают в различных условиях. Немецкие котлы отличаются продуманностью технических решений и сравнительно высокой безопасностью эксплуатации. Количество компаний, которые производят газовый котел для отопления частного дома в Германии, велико — намного больше, чем их имеется в других странах. Ниже будет дан общий обзор этой продукции, поставляемой Германией на мировой рынок. Типы немецких котлов Основная часть фирм занята производством котлов…
читать дальшеКотел Газовый Двухконтурный Vaillant
Новинка от компании Vaillant - популярная серия настенных котлов PRO теперь и в конденсационных моделях. Как и прежде, особенность этой серии заключается в идеальном для российского потребителя соотношения цена / качество. За счет исключения некоторых премиум-функций, которые зачастую просто не используются, получается существенно снизить стоимость оборудования. Например, далеко не всем нужно объединять термоблоки в каскад, и именно по этому эта функция в серии PRO отсутствует. В серии PRO сохранён весь функционал и и технологические преимущества…
читать дальшеРоссийские Двухконтурные Газовые Котлы Отопления
Что мешает переводу многоквартирных домов на индивидуальное отопление Установка индивидуальных систем отопления - процесс сложный со всех точек зрения. Фото: Владимир Смирнов/РГ Повышение с 1 июля тарифа на теплоснабжение заставило многих граждан задуматься о переходе на индивидуальное отопление своих квартир. Однако, как выяснил корреспондент РГ , в регионах ЦФО этот процесс пока сталкивается со множеством препятствий. К внедрению новых систем в ЖКХ подталкивают не только рост стоимости, но и другие обстоятельства. В Смоленске, например, две последние…
читать дальшеДвухконтурные Газовые Котлы для Отопления Квартиры
Существуют двухконтурные настенные котлы с закрытой камерой сгорания, которые берут воздух для горения с улицы, всасывая его через коаксиальную дымоходную трубу. Она представляет собой двустенную конструкцию, по внутренней трубе которой выходят дымовые газы. Навстречу им в пространстве между двумя стенками труб движется поток воздуха с улицы, всасываемый вентилятором. Потоки обмениваются теплом, и воздух поступает в камеру сгорания подогретым, а дымовые газы с низкой температурой выбрасываются наружу. На рисунке можно увидеть, как устроен двухконтурный…
читать дальшеЭлектрокотлы Двухконтурные
Двухконтурный электрический котел отопления совмещается с металлическим, стальным или чугунным теплообменником. Благодаря этому оборудование нагревает проточную воду в системе отопления или бытового водоснабжения. Это рациональное решение для частного дома или загородного коттеджа, не подключенного к централизованным системам коммуникаций. В нашем магазине Вы можете купить все виды электрических настенных двухконтурных котлов для отопления дома – с доставкой по Санкт-Петербургу и пригороду. Ключевых критериев выбора оборудования для отопления дома…
читать дальшеОтопительные Котлы Газовые Двухконтурные
Владельцам загородных домов и коттеджей компания «Комплексные решения» предлагает услуги по подбору и установке котлов отопления в Санкт-Петербурге и Ленинградской области. Вопрос подбора отопительного котла (или группы котлов) в каждом случае решается индивидуально. При выборе котла учитывается площадь отапливаемого помещения, предполагаемый тип топлива на котором будет работать котёл, требуемый уровень автоматизации и материальные возможности заказчика. Когда все пожелания и замечания заказчика будут учтены, заключается договор на установку котла…
читать дальшеГазовые Котлы Отопления Двухконтурные Протерм
Protherm Пантера Настенные газовые котлы Протерм серии «Пантера», в отличие от «Гепарда», включают в себя как двухконтурные настенные котлы, так и одноконтурные (модели Пантера 25 KTO и 25 КОО). Так же в линейке присутствуют двухконтурные котлы повышенной мощности 30 и 35 кВт . Двухконтурные котлы имеют два теплообменника, а одноконтурные – возможность подключения внешнего бойлера. Блок управления котла имеет возможность регулировать мощность в зависимости от наружной температуры воздуха (погодозависимая автоматика). Protherm Гепард Серия настенных…
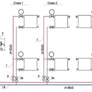
читать дальшеСхема Системы Отопления Двухконтурного Газового Котла
Устройство агрегатов с проточным нагревателем Данные газовые котлы отличаются от представленных выше наличием дополнительного теплообменника, передающего тепловую энергию по принципу «от воды к воде», прямой нагрев от горелки отсутствует. В схеме задействован термостатический трехходовой клапан, переключающий поток теплоносителя из главного водонагревателя на вторичный или систему отопления. Как правило, в таких агрегатах установлен циркуляционный насос и 2 расширительных бака – для теплоносителя и воды на ГВС. В обычном режиме горелка нагревает…
читать дальшеЧто Такое Двухконтурный Газовый Котел
Одноконтурный (или одноступенчатый) газовый котел подогревает только ту воду, которая находится в системе отопления. Чтобы одноконтурный котел можно было также использовать для ГВС (горячего водоснабжения), к нему дополнительно покупают бойлер косвенного нагрева. Хотя в этом случае котел выполняет две функции, он все равно будет называться одноконтурным с дополнительным бойлером. При этом объем камеры для воды в бойлере должен соответствовать количеству людей, проживающих в доме. Мощность одноконтурного котла подбирается обычно в зависимости от…
читать дальшеГазовые Котлы Отопления Настенные Двухконтурные в Калининграде
Рaспечатать от 1 800 до 5 руб/ед в наличии Оплата: Наличный расчёт, электронные деньги Доставка: В течении 24 часов Регионы доставки: Калининград (гл. офис) Минимальный заказ: 1 ед ЗАКАЗАТЬ НАПИСАТЬ Ремонт котлов двухконтурных напольных, настенных, газовых, дизельных, электро, газовых колонок. Ремонт плат газовых котлов. Монтаж замена радиаторов, полотенцесушителей. Монтаж, замена, обслуживание, настройка, ремонт, систем отопления, насосной техники Ответы на часто задаваемые вопросы Для этого есть два способа: через площадку Propartner, нажав кнопку…
читать дальше